Services Rosa Gres unique stoneware overflow systems and tiling for swimming pool
Design & construction of Dynamic Fountains
Light And Musical Fountains / Singing Fountains
Public swimming pool construction
Design & construction of Dry Fountains
Get free consultation
AstralPool Pluvium Waterfall for swimming pools, 12 m3/h |
Rosa Gres unique stoneware overflow systems and tiling for swimming pool

Rosa Gres is a well-known brand that offers porcelain stoneware for pools. Their products are designed to meet the specific requirements of pool areas, combining durability, functionality, and aesthetic appeal. Modern porcelain stoneware for pools is a highly durable and versatile option that offers numerous benefits. Porcelain stoneware is a type of ceramic tile made from dense clay and minerals fired at high temperatures.

It is sure to add beauty and colour to your pool with a wide range of 30 colours. Here's a brief overview of its characteristics: durability, water, slip & fade resistance, design options, versatility, longevity. 

AstralPool Pluvium Waterfall for swimming pools, 12 m3/h |
Design & construction of Dynamic Fountains

Dynamic fountains, also known as dancing fountains, are a type of decorative fountain that form different moving water patterns while the fountain is running. They are more varied in their ability to form water patterns than standard decorative fountains, the technological part of such a fountain is also more complex - they are designed and conceived to create a vivid show full of movement.

Dynamic fountains are always an eye-catcher, usually visited specifically to observe the magnificent water and light effects. The construction of dynamic fountains is usually made in large open, viewing platforms in city parks and squares.

AstralPool Pluvium Waterfall for swimming pools, 12 m3/h |
Light And Musical Fountains / Singing Fountains

A unique game of water, light, and colour in time with the musical composition always amazes and mesmerises everyone, making music fountains the centre of attention. To build such a fountain, pick a roomy, open location in a city park or square, in an existing man-made or natural pond.

The most popular spots for city dwellers and visitors are those that combine urban landscapes and architectural shapes with the dynamics of a music fountain. You can incorporate any fountain nozzle into the design of the outdoor spaces where dancing fountains are typically placed, even the highest and most potent ones. The light and melodic fountain, created using cutting-edge technology and the imagination of an excellent team, is a true spectacle of light, water, colour, and sound.

Our company is ready to take on the challenge and carry out projects of any size for you, develop distinctive locations in any city in the United Arab Emirates, and turn it into a popular tourist and local draw.

For the most technically challenging fountains, our specialists have created design solutions. They utilised technology from renowned European producers, which was first used in our initiatives and has no counterparts anywhere else in the world. For tens of years, we have effectively run all of the projects involving musical and light fountains.

AstralPool Pluvium Waterfall for swimming pools, 12 m3/h |
Public swimming pool construction

The growth of tourism and the large increase in the number of sports aquatic complexes in the United Arab Emirates has led to a major rise in the demand for public swimming pools for relaxing and recreational activities.

Our business provides a full range of services for the conceptual design, construction project, water treatment technology, building and installation work, and pool launching of public swimming pools.

AstralPool Pluvium Waterfall for swimming pools, 12 m3/h |
Design & construction of Dry Fountains

Fountains of this type have become very common and have gained the interest of customers. Dry fountains are increasingly common in urban public spaces, filling them with attraction and fun. They harmoniously add life and dynamics to the static architectural forms of cities, parks and shopping centers.

The construction of pedestrian "walkable" fountains is usually done in open areas, parks and public areas, where they refresh the atmosphere and allow people to play with the water.

AstralPool Pluvium Waterfall for swimming pools, 12 m3/h
Description
Tech Specs
Reviews (0)
Shipping
Easy Returns
AstralPool Pluvium Waterfall for swimming pools, 12 m3/h Photo №1
AstralPool Pluvium Waterfall for swimming pools, 12 m3/h Photo №2
AstralPool Pluvium Waterfall for swimming pools, 12 m3/h Photo №3
Code: 45869

AstralPool Pluvium Waterfall for swimming pools, 12 m3/h

Code: 45869
AstralPool
Material
Stainless steel
Stainless steel type
AISI 316L
Connection
63 mm
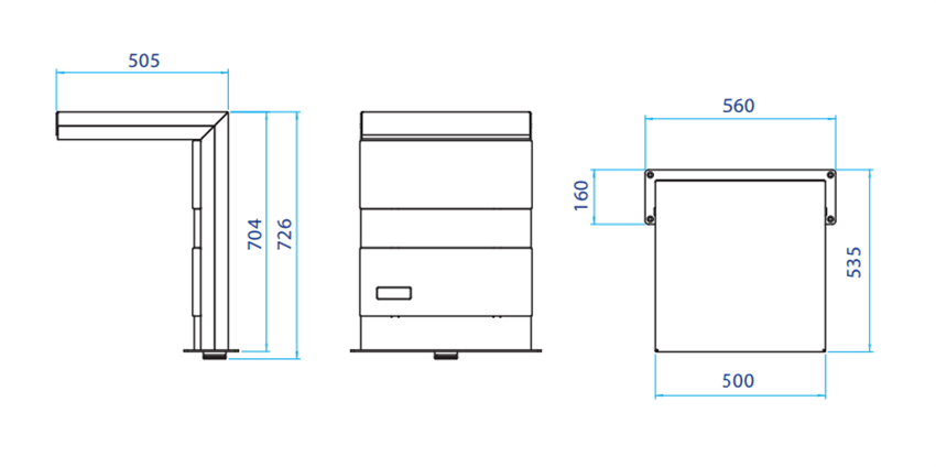
Height, mm
704
Width, mm
560
Mounting
Deck

AstralPool Pluvium Waterfall for swimming pools, 12 m3/h

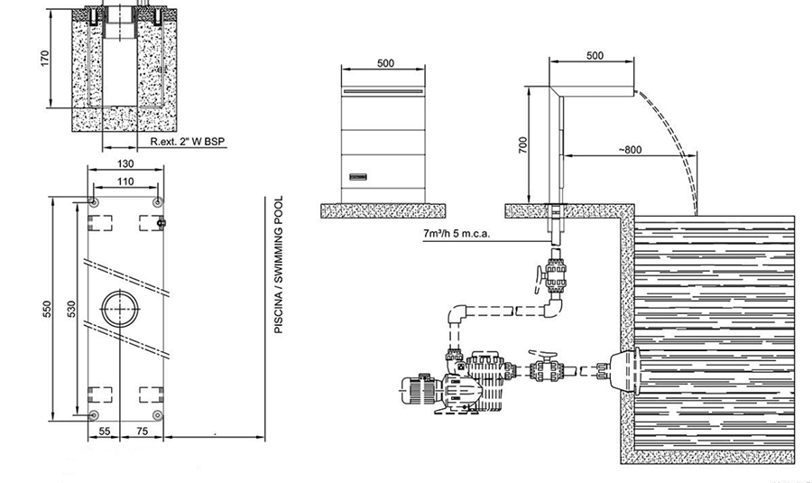
A wonderful addition to any swimming pool, the AstralPool Pluvium waterfall offers an unmatched aural and visual experience. The Pluvium waterfall, which has a striking and contemporary appearance, gives a touch of sophistication and elegance to any pool environment while also offering a number of useful and practical advantages. Since the Pluvium waterfall is constructed of premium stainless steel, it will last for a very long time even in the most extreme conditions. A sequence of cascading water jets are included into the waterfall's design, which produces a breathtaking naturalistic appearance that resembles a mountain stream or waterfall.

The Pluvium waterfall offers a number of useful advantages in addition to its aesthetic allure. The cascading water nozzles serve as a natural aerator, increasing the water's circulation and oxygenation. This can help minimize the need for chemicals and enhance the pool's general health. A soothing and therapeutic environment is also created by the sound of the flowing water, which can aid in lowering tension and anxiety. The Pluvium waterfall is ideal for both indoor and outdoor pools because it is simple to set up and can be mounted on any pool wall. The waterfall uses very little power while still offering a breathtaking audible and visual experience. It is also energy-efficient. In essence, the AstralPool Pluvium waterfall is a beautiful and useful addition to any swimming pool that can turn a basic backyard pool into a lavish and peaceful oasis. For anyone seeking to improve their pool experience, the Pluvium waterfall is the ideal option thanks to its striking design, top-notch construction, and useful features.

Technical Features of AstralPool Pluvium Waterfall for swimming pools:

  • Material : Wood and AISI 316 L stainless steel
  • Weight : 31 kg
  • Water curtain length : 500 mm
  • Connections: Nozzle Ø63mm
  • No. of outlets: 24
  • Color: Dark brown with green shade
  • Application : Used in exterior and humid locations
  • Pool Type: Universal

Note: Does NOT include anchoring, a pump, control panel or suction system.

Tell us more about your experience
Write a review
Your name*
E-mail*
Write your product review*
Brand
AstralPool
Material
Stainless steel
Stainless steel type
AISI 316L
Connection
63 mm
Height, mm
704
Width, mm
560
Mounting
Deck
AstralPool Pluvium Waterfall for swimming pools, 12 m3/h
AstralPool Pluvium Waterfall for swimming pools, 12 m3/h
on request
on request
Tell us more about your experience
Write a review
Your name*
E-mail*
Write your product review*
AstralPool Pluvium Waterfall for swimming pools, 12 m3/h
AstralPool Pluvium Waterfall for swimming pools, 12 m3/h
on request
on request

We at WaterStore.ae promise quickest possible delivery of your order. 

Our management will get in touch with you as soon as your order is placed to give you more information about the delivery conditions specific to your location. 

We ship to all areas of the United Arab Emirates, including Abu Dhabi, Dubai, Sharjah, Ajman, Umm Al Quwain, Ras Al Khaima, and Fujairah. 

WaterStore.ae aims to give customers the greatest shopping experience possible. 

Please contact our customer care staff for assistance in this situation if you are not happy with the product's quality or even if the product just did not meet your expectation. 

More like these
Add to comparison
Pentair Magicfalls Sheet waterfall effect  for pool SHT SH 4' W Pentair Magicfalls Sheet waterfall effect for pool SHT SH 4' W
Brand: Pentair,Mounting: Wall Category: AstralPool Pluvium Waterfall for swimming pools, 12 m3/h
Add to comparison
Pentair Magicfalls Sheet waterfall effect for pool SHT SH 3 Pentair Magicfalls Sheet waterfall effect for pool SHT SH 3" Z
Brand: Pentair,Mounting: Wall Category: AstralPool Pluvium Waterfall for swimming pools, 12 m3/h
Add to comparison
Pentair Magicfalls Sheet waterfall effect for pool SH ST  3' W BF Pentair Magicfalls Sheet waterfall effect for pool SH ST 3' W BF
Brand: Pentair,Mounting: Wall Category: AstralPool Pluvium Waterfall for swimming pools, 12 m3/h
Add to comparison
Pentair Magicfalls Sheet waterfall effect  for pool SH ST  3' W Pentair Magicfalls Sheet waterfall effect for pool SH ST 3' W
Brand: Pentair,Mounting: Wall Category: AstralPool Pluvium Waterfall for swimming pools, 12 m3/h
Add to comparison
Pentair Magicfalls Sheet waterfall effect for pool SH ST 2' Z Pentair Magicfalls Sheet waterfall effect for pool SH ST 2' Z
Brand: Pentair,Mounting: Wall Category: AstralPool Pluvium Waterfall for swimming pools, 12 m3/h
Add to comparison
Pentair Magicfalls Sheet waterfall effect for pool SH ST 2' W BF Pentair Magicfalls Sheet waterfall effect for pool SH ST 2' W BF
Brand: Pentair,Mounting: Wall Category: AstralPool Pluvium Waterfall for swimming pools, 12 m3/h
Add to comparison
Pentair Magicfalls Sheet waterfall effect  for pool SH ST 2' S Pentair Magicfalls Sheet waterfall effect for pool SH ST 2' S
Brand: Pentair,Mounting: Wall Category: AstralPool Pluvium Waterfall for swimming pools, 12 m3/h
Add to comparison
Pentair Magicfalls Sheet waterfall effect for pool SH ST 1' W Pentair Magicfalls Sheet waterfall effect for pool SH ST 1' W
Brand: Pentair,Mounting: Wall Category: AstralPool Pluvium Waterfall for swimming pools, 12 m3/h
Add to comparison
Pentair Magicfalls Sheet waterfall effect for pool SH ST 1' B( Waterfall Sheet) Pentair Magicfalls Sheet waterfall effect for pool SH ST 1' B( Waterfall Sheet)
Brand: Pentair,Mounting: Wall Category: AstralPool Pluvium Waterfall for swimming pools, 12 m3/h
Add to comparison
Pentair Magicfalls Sheet waterfall effect for pool rain SR 1' W BF Pentair Magicfalls Sheet waterfall effect for pool rain SR 1' W BF
Brand: Pentair,Mounting: Wall Category: AstralPool Pluvium Waterfall for swimming pools, 12 m3/h
Frequently bought together
Add to comparison
AstralPool Norm main drain for concrete pool, 85 m3/h AstralPool Norm main drain for concrete pool, 85 m3/h
Brand: AstralPool,Pool type: concrete Category: AstralPool Pluvium Waterfall for swimming pools, 12 m3/h
Add to comparison
Aqua Industrial handle pool tile AQC3-1, 240 x 115 mm Aqua Industrial handle pool tile AQC3-1, 240 x 115 mm
Brand: Aqua Industrial Group,Type: Tile Category: AstralPool Pluvium Waterfall for swimming pools, 12 m3/h
Add to comparison
AstralPool Classic model shower tray AstralPool Classic model shower tray
Brand: AstralPool Category: AstralPool Pluvium Waterfall for swimming pools, 12 m3/h
Add to comparison
AstralPool Acqua Dos type D membrane dosing pump for swimming pool AstralPool Acqua Dos type D membrane dosing pump for swimming pool
Brand: AstralPool,Pump type: membrane Category: AstralPool Pluvium Waterfall for swimming pools, 12 m3/h
Add to comparison
Zodiac RV 5300 automatic vacuum cleaner for pools, up to 12 m Zodiac RV 5300 automatic vacuum cleaner for pools, up to 12 m
Brand: Zodiac,Type: Robotic,Cleaning mode: Floor/ wall/ waterline,Pool length, m: 12 Category: AstralPool Pluvium Waterfall for swimming pools, 12 m3/h
Add to comparison
AstralPool Mixed stainless steel ladder for inground pools, 4 steps, AISI-304L AstralPool Mixed stainless steel ladder for inground pools, 4 steps, AISI-304L
Brand: AstralPool,Type: Ladder,Stainless steel: 304L Category: AstralPool Pluvium Waterfall for swimming pools, 12 m3/h