Services Rosa Gres unique stoneware overflow systems and tiling for swimming pool
Design & construction of Dynamic Fountains
Light And Musical Fountains / Singing Fountains
Public swimming pool construction
Design & construction of Dry Fountains
Get free consultation
AstralPool Silk Flow Waterfall for pool, 300mm |
Rosa Gres unique stoneware overflow systems and tiling for swimming pool

Rosa Gres is a well-known brand that offers porcelain stoneware for pools. Their products are designed to meet the specific requirements of pool areas, combining durability, functionality, and aesthetic appeal. Modern porcelain stoneware for pools is a highly durable and versatile option that offers numerous benefits. Porcelain stoneware is a type of ceramic tile made from dense clay and minerals fired at high temperatures.

It is sure to add beauty and colour to your pool with a wide range of 30 colours. Here's a brief overview of its characteristics: durability, water, slip & fade resistance, design options, versatility, longevity. 

AstralPool Silk Flow Waterfall for pool, 300mm |
Design & construction of Dynamic Fountains

Dynamic fountains, also known as dancing fountains, are a type of decorative fountain that form different moving water patterns while the fountain is running. They are more varied in their ability to form water patterns than standard decorative fountains, the technological part of such a fountain is also more complex - they are designed and conceived to create a vivid show full of movement.

Dynamic fountains are always an eye-catcher, usually visited specifically to observe the magnificent water and light effects. The construction of dynamic fountains is usually made in large open, viewing platforms in city parks and squares.

AstralPool Silk Flow Waterfall for pool, 300mm |
Light And Musical Fountains / Singing Fountains

A unique game of water, light, and colour in time with the musical composition always amazes and mesmerises everyone, making music fountains the centre of attention. To build such a fountain, pick a roomy, open location in a city park or square, in an existing man-made or natural pond.

The most popular spots for city dwellers and visitors are those that combine urban landscapes and architectural shapes with the dynamics of a music fountain. You can incorporate any fountain nozzle into the design of the outdoor spaces where dancing fountains are typically placed, even the highest and most potent ones. The light and melodic fountain, created using cutting-edge technology and the imagination of an excellent team, is a true spectacle of light, water, colour, and sound.

Our company is ready to take on the challenge and carry out projects of any size for you, develop distinctive locations in any city in the United Arab Emirates, and turn it into a popular tourist and local draw.

For the most technically challenging fountains, our specialists have created design solutions. They utilised technology from renowned European producers, which was first used in our initiatives and has no counterparts anywhere else in the world. For tens of years, we have effectively run all of the projects involving musical and light fountains.

AstralPool Silk Flow Waterfall for pool, 300mm |
Public swimming pool construction

The growth of tourism and the large increase in the number of sports aquatic complexes in the United Arab Emirates has led to a major rise in the demand for public swimming pools for relaxing and recreational activities.

Our business provides a full range of services for the conceptual design, construction project, water treatment technology, building and installation work, and pool launching of public swimming pools.

AstralPool Silk Flow Waterfall for pool, 300mm |
Design & construction of Dry Fountains

Fountains of this type have become very common and have gained the interest of customers. Dry fountains are increasingly common in urban public spaces, filling them with attraction and fun. They harmoniously add life and dynamics to the static architectural forms of cities, parks and shopping centers.

The construction of pedestrian "walkable" fountains is usually done in open areas, parks and public areas, where they refresh the atmosphere and allow people to play with the water.

AstralPool Silk Flow Waterfall for pool, 300mm
Description
Tech Specs
Reviews (0)
Shipping
Easy Returns
AstralPool Silk Flow Waterfall for pool, 300mm Photo №1
AstralPool Silk Flow Waterfall for pool, 300mm Photo №2
AstralPool Silk Flow Waterfall for pool, 300mm Photo №3
AstralPool Silk Flow Waterfall for pool, 300mm Photo №4
AstralPool Silk Flow Waterfall for pool, 300mm Photo №5
Code: 45205

AstralPool Silk Flow Waterfall for pool, 300mm

Code: 45205
AstralPool
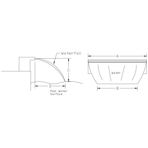
Material
ABS plastic
Connection
50mm PVC pipe
Height, mm
300
Width, mm
200
Mounting
Deck

Astral Pool Silk Flow Waterfall for pool, 300mm

A waterfall can be a terrific way to add style and enjoyment to your swimming pool. Waterfalls enhance your pool's aesthetic appeal and make your outdoor area more enticing and can accentuate your pool to make it look luxurious and elegant.

The sights and sounds of falling water are captivating and can be extremely calming. With today's hectic lifestyle, waterfalls offer soothing sights and sounds that help you relax. As you prop your feet up and enjoy Mother Nature's healing effects, you'll lower your blood pressure and improve your physical and mental health.

Product Recommendations:

  • A dedicated plumbing line
  • waterfall must be placed before the deck and coping can be laid
  • The waterfall does require a pump, control box, and suction pipes in order to function.
  • Required Flow Rate: 50 ltr/min
  • Pump Size:0.50 Hp

 Waterfalls comes in a variety of types and sizes to accommodate any pool shape. A pool upgrade can include anything from lighting to heating to slide! A beautiful waterfall, however, is the ultimate pool addition!

Tell us more about your experience
Write a review
Your name*
E-mail*
Write your product review*
Brand
AstralPool
Material
ABS plastic
Connection
50mm PVC pipe
Height, mm
300
Width, mm
200
Mounting
Deck
AstralPool Silk Flow Waterfall for pool, 300mm
AstralPool Silk Flow Waterfall for pool, 300mm
on request
on request
Tell us more about your experience
Write a review
Your name*
E-mail*
Write your product review*
AstralPool Silk Flow Waterfall for pool, 300mm
AstralPool Silk Flow Waterfall for pool, 300mm
on request
on request

We at WaterStore.ae promise quickest possible delivery of your order. 

Our management will get in touch with you as soon as your order is placed to give you more information about the delivery conditions specific to your location. 

We ship to all areas of the United Arab Emirates, including Abu Dhabi, Dubai, Sharjah, Ajman, Umm Al Quwain, Ras Al Khaima, and Fujairah. 

WaterStore.ae aims to give customers the greatest shopping experience possible. 

Please contact our customer care staff for assistance in this situation if you are not happy with the product's quality or even if the product just did not meet your expectation. 

More like these
Add to comparison
Pentair Magicfalls Sheet waterfall effect  for pool SHT SH 4' W Pentair Magicfalls Sheet waterfall effect for pool SHT SH 4' W
Brand: Pentair,Mounting: Wall Category: AstralPool Silk Flow Waterfall for pool, 300mm
Add to comparison
Pentair Magicfalls Sheet waterfall effect for pool SHT SH 3 Pentair Magicfalls Sheet waterfall effect for pool SHT SH 3" Z
Brand: Pentair,Mounting: Wall Category: AstralPool Silk Flow Waterfall for pool, 300mm
Add to comparison
Pentair Magicfalls Sheet waterfall effect for pool SH ST  3' W BF Pentair Magicfalls Sheet waterfall effect for pool SH ST 3' W BF
Brand: Pentair,Mounting: Wall Category: AstralPool Silk Flow Waterfall for pool, 300mm
Add to comparison
Pentair Magicfalls Sheet waterfall effect  for pool SH ST  3' W Pentair Magicfalls Sheet waterfall effect for pool SH ST 3' W
Brand: Pentair,Mounting: Wall Category: AstralPool Silk Flow Waterfall for pool, 300mm
Add to comparison
Pentair Magicfalls Sheet waterfall effect for pool SH ST 2' Z Pentair Magicfalls Sheet waterfall effect for pool SH ST 2' Z
Brand: Pentair,Mounting: Wall Category: AstralPool Silk Flow Waterfall for pool, 300mm
Add to comparison
Pentair Magicfalls Sheet waterfall effect for pool SH ST 2' W BF Pentair Magicfalls Sheet waterfall effect for pool SH ST 2' W BF
Brand: Pentair,Mounting: Wall Category: AstralPool Silk Flow Waterfall for pool, 300mm
Add to comparison
Pentair Magicfalls Sheet waterfall effect  for pool SH ST 2' S Pentair Magicfalls Sheet waterfall effect for pool SH ST 2' S
Brand: Pentair,Mounting: Wall Category: AstralPool Silk Flow Waterfall for pool, 300mm
Add to comparison
Pentair Magicfalls Sheet waterfall effect for pool SH ST 1' W Pentair Magicfalls Sheet waterfall effect for pool SH ST 1' W
Brand: Pentair,Mounting: Wall Category: AstralPool Silk Flow Waterfall for pool, 300mm
Add to comparison
Pentair Magicfalls Sheet waterfall effect for pool SH ST 1' B( Waterfall Sheet) Pentair Magicfalls Sheet waterfall effect for pool SH ST 1' B( Waterfall Sheet)
Brand: Pentair,Mounting: Wall Category: AstralPool Silk Flow Waterfall for pool, 300mm
Add to comparison
Pentair Magicfalls Sheet waterfall effect for pool rain SR 1' W BF Pentair Magicfalls Sheet waterfall effect for pool rain SR 1' W BF
Brand: Pentair,Mounting: Wall Category: AstralPool Silk Flow Waterfall for pool, 300mm
Frequently bought together
Add to comparison
AstralPool SkyPool 300 mm 4 m3/h pool filtration kit AstralPool SkyPool 300 mm 4 m3/h pool filtration kit
Brand: AstralPool,Flow rate, m3/h: 4,Valve type: top mounted Category: AstralPool Silk Flow Waterfall for pool, 300mm
Add to comparison
Aqua Industrial tee body for hydromassage nozzle, liner/concrete Aqua Industrial tee body for hydromassage nozzle, liner/concrete
Type: Hydro/ aero massage nozzles,Brand: Aqua Industrial Group Category: AstralPool Silk Flow Waterfall for pool, 300mm
Add to comparison
AstralPool Millennium filter with side mounted valve D380 mm 5,5 m3/h    AstralPool Millennium filter with side mounted valve D380 mm 5,5 m3/h
Brand: AstralPool,Flow rate, m3/h: 5.5,Valve type: side mounted Category: AstralPool Silk Flow Waterfall for pool, 300mm
Add to comparison
Airtech ASC0080 0.37kw 80m3/h 230 V air blower Airtech ASC0080 0.37kw 80m3/h 230 V air blower
Brand: Airtech,Flow rate, m3/h: 70,Power consumption, kW: 0.25,Phase: Single Category: AstralPool Silk Flow Waterfall for pool, 300mm
Add to comparison
Aqua Industrial LIPARI 50M 13 m3/h pump for the swimming pool, 0.5 HP Aqua Industrial LIPARI 50M 13 m3/h pump for the swimming pool, 0.5 HP
Brand: Aqua Industrial Group,Voltage, V: 230,Power consumption, kW: 0.37,Flow rate, m3/h: 13 Category: AstralPool Silk Flow Waterfall for pool, 300mm
Add to comparison
Aqua Industrial E108 252 LED light RGB for pools, 18 W, concrete/ liner Aqua Industrial E108 252 LED light RGB for pools, 18 W, concrete/ liner
Brand: Aqua Industrial Group,Color: RGB,Material: ABS plastic,Power, W: 18 Category: AstralPool Silk Flow Waterfall for pool, 300mm
Recently viewed
Add to comparison
AstralPool portable handrail holder for spa AstralPool portable handrail holder for spa
Brand: AstralPool,Type: Handrail Category: AstralPool Silk Flow Waterfall for pool, 300mm